Meine Architektur entwickelt sich aus dem Kontext. Jedes Bauwerk ist in etwas Bestehendes eingebettet: eine Landschaft, eine Siedlungsstruktur oder ein Ensemble. Unabhängig davon, ob ein Haus neu geschaffen, umgebaut oder renoviert wird, erzählt jeder Ort eine Geschichte.
Maß
nehmen.
Planen ist ein Miteinander. Ich gehe sorgfältig auf persönliche Bedürfnisse und Anforderungen ein. Jedes Projekt wird von Anfang an neu entwickelt. Ich übernehme nicht nur funktionale, strukturelle und räumliche Vorgaben. Meine Aufgaben als Architektin sehe ich auch im Gestalten und Atmosphäre schaffen.
Prozesse
begleiten.
Seit über 20 Jahren bin ich mit dem Entwurf, der Planung wie auch der Umsetzung vielfältiger Bauaufgaben betraut: vom detailreich gestalteten Ferienhaus bis zur großflächigen Wohnanlage, von der effizient konzipierten Feuerwehrwache bis zum technikintensiven Schulkomplex, von der schnörkellosen Berghütte bis zum über Generationen gewachsenen Hotelensemble.
Fäden
knüpfen.
Jedes Bauwerk fordert und prägt mich auf seine eigene Weise, verlangt unterschiedliche Fähigkeiten und bringt dadurch neues Wissen. Ich verfüge über ein verlässliches und bewährtes Netzwerk von einheimischen Hadwerker:innen, Baufachleuten und Techniker:innen. Ich kann gewährleisten, dass umfangreiche wie aufwendige Bauwerke bis ins kleinste Detail geplant und ausgeführt werden.
Werte
schaffen.
Bei der Wahl der Konstruktionsweise achte ich auf ökologische und nachhaltige Aspekte.
Ich plane energieeffizient und ressourcenschonend. Holz ist dafür bestens geeignet. Zudem strahlt es Behaglichkeit und Wärme aus.
Ein Gebäude lebt von vielen einzelnen Details, die zusammen etwas Großartiges ergeben. Daher ist es für mich wichtig, das Bauwerk nicht nur zu entwerfen, sondern bis ins kleinste Detail durchzuplanen.
Sicherheitszentrum
Wettbewerb, Mittelberg, 2023
Herausgelöst aus der gewachsenen und mittlerweile stark einschränkend gewordenen ortsbaulichen Situation bietet der neue Standort am Ortsrand Richtung Baad, viel Freiraum für die Situierung des neuen Einsatzgebäudes.
Die Entscheidung zugunsten eines minimierten Flächenverbrauchs auf dem großzügig bemessenen Planungsperimeter fällt klar auf eine möglichst nahe Situierung eines reduzierten und kompakten Baukörpers an der Bödmerstraße. Richtung Breitach, im Rücken des Gebäudes, werden die Möglichkeiten für spätere ortserweiternde Maßnahmen flexibel gehalten. Es gilt der ökologische Grundsatz Flächenversiegelung wo nur irgend möglich zu vermeiden.
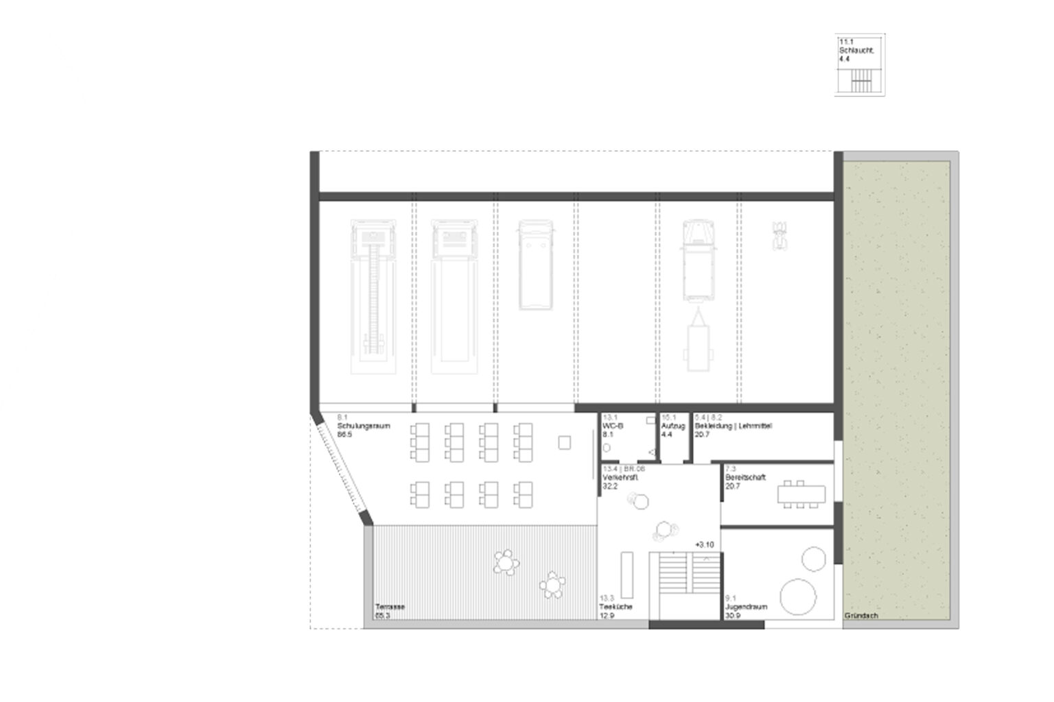
Die leichte Verdrehung der Fahrzeughalle zur Bödmerstraße leitet die Ankommenden parallel zur Birkenwies, an der Eingangsseite entlang, Richtung Parkflächen und Hubschrauberlandeplatz. Mit leichtem Höhenversatz zur Parkfläche und vor neugierigen Blicken geschützt, ist er hier in direkter Nähe zur Bergrettung situiert.
Die Begradigung des ostseitigen Nachbargrundstücks ermöglicht eine reibungsfreie Ausfahrt aller Fahrzeuge auf die Bödmerstraße als auch die Zufahrt zu Parkflächen und Hubschrauberlandeplatz.
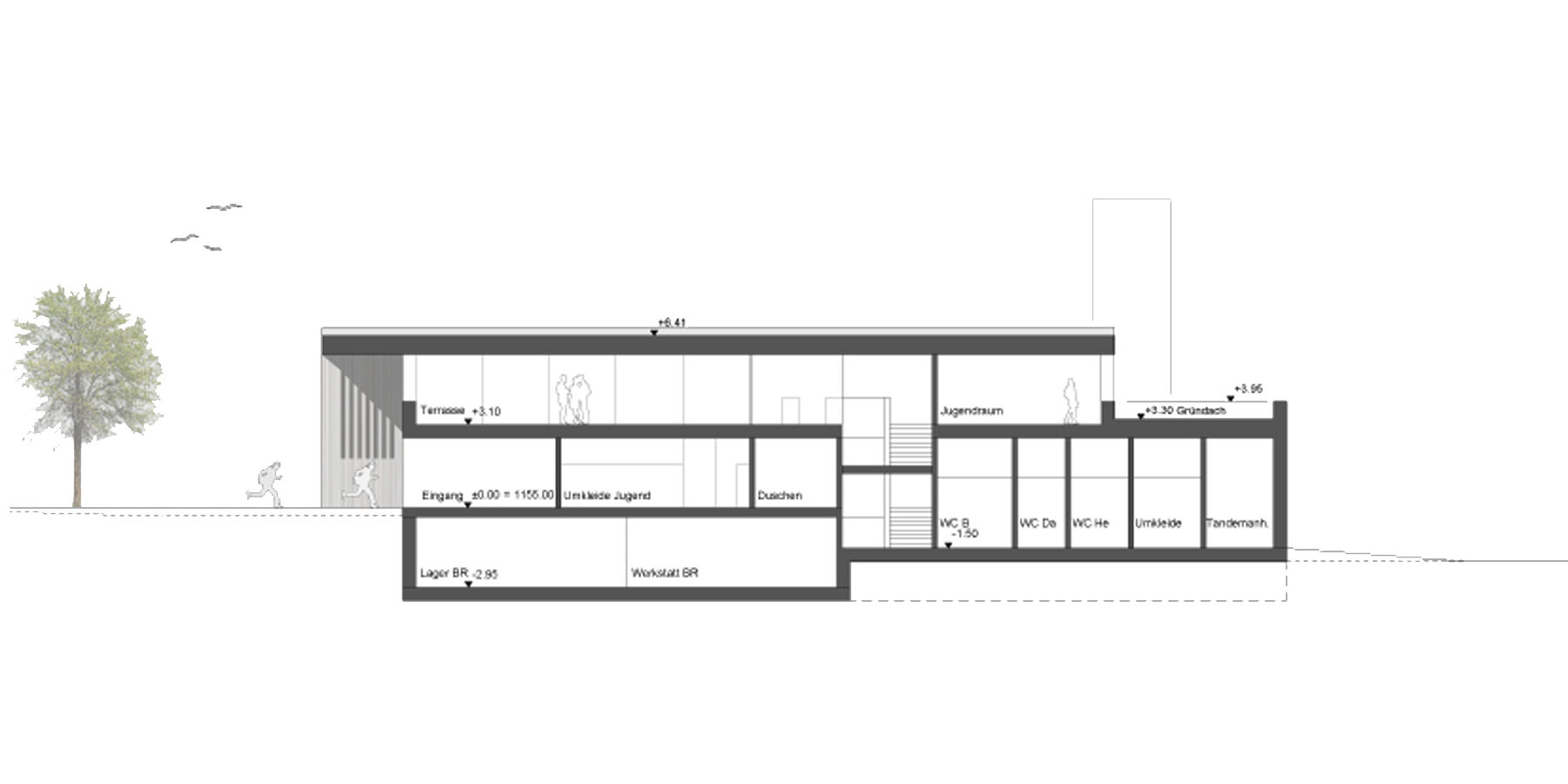
Das Gebäude nimmt den sanften Verlauf des Geländes auf, nutzt den Niveausprung für den öffentlichen Sanitärbereich sowie die überhöhte Garage für den Tankanhänger in unmittelbarer Nähe zum Hubschrauber.
Der Übergang in die umgebenden Wiesen und Freiflächen ist sanft. Niederschläge sollen vor Ort versickert werden. Hier soll das natürliche Ökosystem ergänzt werden und keine merkbare Abgrenzung zur Umgebung stören.
Sich den Satteldachneigungen der Umgebung annähernd fasst ein flach geneigtes Gründach harmonisch das Volumen von Halle und zweigeschossigem Versorgungstrakt und gliedert sich unprätentiös ein.
Termine
Planungsbeginn: Juli 2023
Preisgericht: November 2023
Kollaboration
Architektinnen: Dipl. Ing. Sabine Felder und Dipl. Ing. Gabriele Schierle