Meine Architektur entwickelt sich aus dem Kontext. Jedes Bauwerk ist in etwas Bestehendes eingebettet: eine Landschaft, eine Siedlungsstruktur oder ein Ensemble. Unabhängig davon, ob ein Haus neu geschaffen, umgebaut oder renoviert wird, erzählt jeder Ort eine Geschichte.
Maß
nehmen.
Planen ist ein Miteinander. Ich gehe sorgfältig auf persönliche Bedürfnisse und Anforderungen ein. Jedes Projekt wird von Anfang an neu entwickelt. Ich übernehme nicht nur funktionale, strukturelle und räumliche Vorgaben. Meine Aufgaben als Architektin sehe ich auch im Gestalten und Atmosphäre schaffen.
Prozesse
begleiten.
Seit über 20 Jahren bin ich mit dem Entwurf, der Planung wie auch der Umsetzung vielfältiger Bauaufgaben betraut: vom detailreich gestalteten Ferienhaus bis zur großflächigen Wohnanlage, von der effizient konzipierten Feuerwehrwache bis zum technikintensiven Schulkomplex, von der schnörkellosen Berghütte bis zum über Generationen gewachsenen Hotelensemble.
Fäden
knüpfen.
Jedes Bauwerk fordert und prägt mich auf seine eigene Weise, verlangt unterschiedliche Fähigkeiten und bringt dadurch neues Wissen. Ich verfüge über ein verlässliches und bewährtes Netzwerk von einheimischen Hadwerker:innen, Baufachleuten und Techniker:innen. Ich kann gewährleisten, dass umfangreiche wie aufwendige Bauwerke bis ins kleinste Detail geplant und ausgeführt werden.
Werte
schaffen.
Bei der Wahl der Konstruktionsweise achte ich auf ökologische und nachhaltige Aspekte.
Ich plane energieeffizient und ressourcenschonend. Holz ist dafür bestens geeignet. Zudem strahlt es Behaglichkeit und Wärme aus.
Ein Gebäude lebt von vielen einzelnen Details, die zusammen etwas Großartiges ergeben. Daher ist es für mich wichtig, das Bauwerk nicht nur zu entwerfen, sondern bis ins kleinste Detail durchzuplanen.
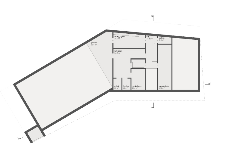
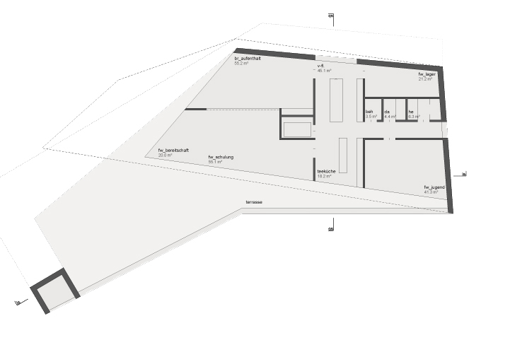
Sicherheitszentrum
Wettbewerb, Bizau, 2023
Der dem Wettbewerb zugrunde liegende Planungsperimeter liegt am Ortsrand von Bizau, nördlich des Bizauer Baches und ist charakterisiert durch seine Lage am Hangfuss.
Die Lage des Grundstückes ist sehr markant und fordert in der Gestaltung, aber auch aus bautechnischer Sicht, eine bewusste Auseinandersetzung mit der Hangneigung und der Steilheit des Geländes. Diese besondere Situation ist prägender für den Entwurf als der reine ortsbauliche Kontext und die Antworten darauf.
Die Architektur reagiert auf diesen Umstand. Das Gebäude nimmt die Linie der Böschungskante auf und spielt mit den sich ergebenden unterschiedlichen Tiefen zwischen der Fassade und dem Hang.
Den Höhenschichtenlinien folgend ergibt sich ein sehr dynamisch geformter Baukörper, der die Geschwindigkeit und Präsenz der Feuerwehr und Bergrettung unterstreichen soll.
Selbstbewusst steht der Schlauchturm in Opposition zum restlichen Gebäude und lässt so keine Zweifel an der Funktion des Gebäudes.
Termine
Planungsbeginn: Dezember 2022
Preisgericht: März 2023
Architekturleistung
Leistungsphasen: LPH 1–4 und LPH 7
Fachplanung
Bauleitung:
Statik:
Elektroplanung:
Haustechnikplanung:
Bauphysik:
Kollaboration
Hämmerle Tschikof GmbH: Dipl. Ing. Valentin Tschikof